216 Blackfriars Road
Berühmter Kontext

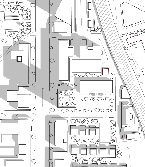
Der Wohnturm befindet sich im Londoner Stadtteil Blackfriar in der Nähe des Themse Ufers. Das Grundstück wird durch die Blackfriars Road und der erhöhten Bahntrasse mit anliegenden viktorianischen Häusern gesäumt.
Wichtige kulturelle Einrichtungen wie der Tate Modern als auch dem London Eye oder House of Parliament sind von dem Wohnturm ersichtlich und unterstreichen die Zentralität des Gebäudes.
Leichte Verdrehung
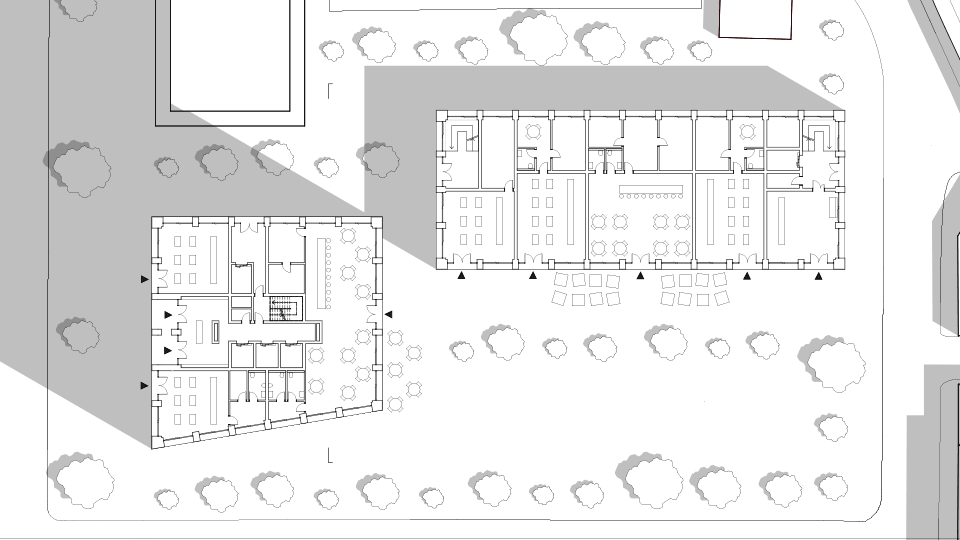
Der Entwurf verändert die bestehende Situation. So wird das vorhandene Altenheim in einem neuen Baukörper untergebracht, um eine angemessene urbane Dichte zu erzeugen. Der Wohnturm und die Bestandsgebäude bilden dadurch einen städtischen Platz aus.
Durch das Einklappen des Turms im unteren Fassadenabschnitt öffnet sich der Platz zum Straßenraum. Der obere Abschnitt orientiert sich zum Them-seufer und baut eine Blickbeziehung zur historischen Stadtsilhouette auf.
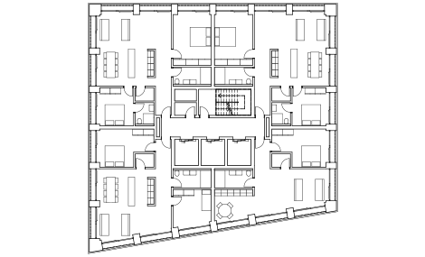
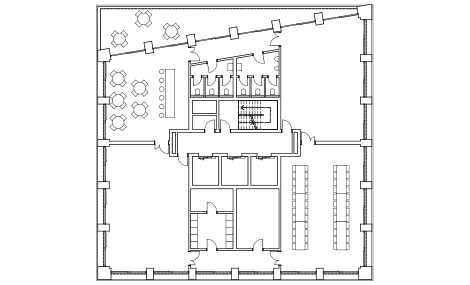
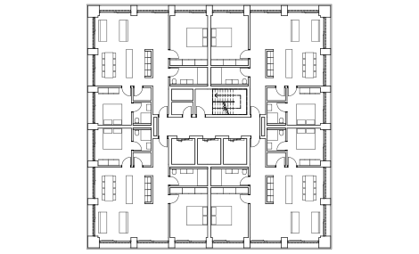
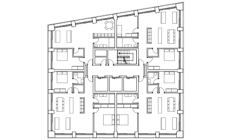
Dreiteiligkeit des Turms
Weicher Beton


In Zusammenarbeit mit Frederik Stockhausen
Betreuung durch Dipl.-Ing. Martin Ebert
