Natur & Trauer

Die Grabform des Kolumbariums ist in Norddeutschland eine selten gewähl-te Bestattungform, obwohl ein Trend zur Feuerbestattung zu verzeichnen ist. Das Kolumbarium am Aasse in Münster stellt nicht nur eine Grabsstätte dar sondern bietet zusätzlich Raum für Trauerhilfe oder Interaktion. Offen-heit und Naturverbundenheit spielen eine wesentliche Rolle bei diesem Entwurf.
Aus diesem Grund ist das Erscheinungsbild von vielen Glasflächen und leichter Tragstruktur geprägt. Darüber hinaus sollen Hemmschwellen, die das Thema Tod und Verlust mit sich bringen, genommen werden. Mit dem Kolumbarium am Aasee wird ein Trauerzentrum geschaffen, welches in zentraler Lage in Münster fehlt.
Antike als Vorbild
Geschützter Ausblick
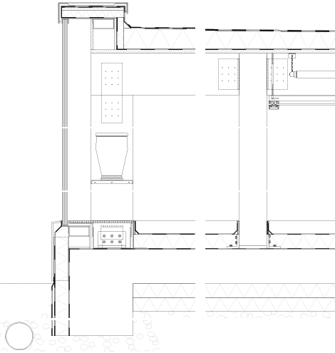
Natürliche Materialien

Die Konstruktion besteht aus Fichtenholz, um eine vertraute Umgebung zu schaffen. Sowohl das Ständerbauwerk als auch die Massivholzwände sind aus diesem Material gefertigt.
Die Verbindung von Stütze und Deckenbalken wird mit Hilfe von Stahlblech-en und Stabdübeln bewerkstelligt.
Diese sind in Einfräsungen in Stützen und Deckenbalken platziert, sodass sie nicht sichtbar sind.
Das Gebäude steht auf einem Sockel, der mit Corteen-Stahl verkleidet wird. Luftschlitze im Sockelbereich und eine Dachöffnung ermöglichen eine natürliche Belüftung.
Bachelorarbeit
Betreuung durch Dipl.-Ing. Michael Schanné
Zweitprüfer Jörgen Dreher M.A
