Merkur - neues Licht für Soest
Ankauf beim offenen Ideenwettbewerb für Studenten
Eine Chance für das Merkur-Fabrikgebäude
Glühwendel & Anger
Herzstück des Merkurgeländes ist das historische Merkurgebäude.
Um es angemessen zu präsentieren, entsteht ein großer, urbaner Platz – der Merkurplatz. Neubauten mit Wohnungen, Geschäften des täglichen Bedarfs und eine Fahrradmanufaktur mit Werkstatt säumen den Platz. Letzeres, um an die neu entstehende Fahrradtrasse anzuschließen. Der Bereich um den Merkurplatz hebt sich von dem südlichen Wohngebiet, welches dörf-licher gestaltet ist, ab. Somit können unterschiedliche Zielgruppen angesprochen werden.
Durch die Farbigkeit ordnen sich die Neubauten dem historischen Bestand des Merkurgeländes unter, überraschen jedoch mit dem Anwendung findenden hellen Kohlebrandziegeln. Bei der Herstellung dieses wasser-gestrichenen Ziegels entsteht ein Farbenspiel in helleren und dunkleren Nuancen. In dem für dieses Projekt ausgewähltem Stein sind auch Grüntöne zu finden, die an den für Soest typischen grünen Sandstein erinnern.
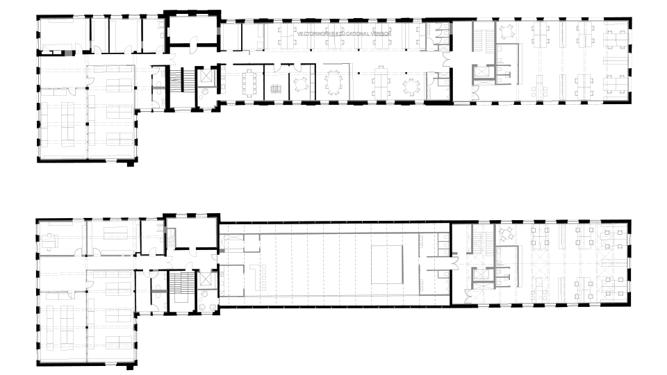
Neue Nutzung - Historie erhalten
Die Firma Merkur war 70 Jahre lang im Merkurwerk in Soest verortet und stand für Tradition und Handwerkskunst.
Nun soll das Handwerk in die historischen Räume der ehemaligen Fabrikationsstätte zurückkehren. Weiter finden neben einem Restaurant auch Betriebe mit Lebensmittelproduktion mit Verkauf und Verkostung wie z.B. eine Käserei und eine Distillerie im Merkurgebäude Platz.
Zusammen mit Co-Working Bereichen für Freiberufler und Start-Up-Unternehmen könnte das Merkurgelände ein neues kreatives Zentrum in Soest werden. Abgerundet wird das Konzept durch einen neuen Veranstaltungssaal im Dachgeschoss, welcher flexibel nutzbar sein soll.
Somit kommen im Merkurgebäude Funktionen zusammen, die für die ganze Stadt, das Umland und Touristen interessant sind.
Zurückhaltung & Zitate

In Zusammenarbeit mit Anna-Laura Hölz
Betreuung durch Dipl.-Ing. Kirsten Schemel
